KRAFT EcoLine Container

Sie suchen einen flexibel einsetzbaren Container für Büro, Lager, Sozialraum oder Projektfläche?
Mit dem KRAFT EcoLine Container erhalten Sie eine hochwertige und zugleich wirtschaftliche Lösung – inklusive Planung, individueller Ausstattung und termingerechter Lieferung direkt von KRAFT.

Oder kostenlos beraten lassen:

Einsatzbereiche für diese schnell lieferbaren Container:

– Bürocontainer
– Pförtner- / Empfangscontainer
– Umkleidecontainer
– Baustellencontainer
– Interimslösung als Büro oder Lager
– Verkaufscontainer
– Unterstand bei schlechtem Wetter
– Lager für Elektrowerkzeuge
– Lager für feuchtigkeitsempfindliche Materialien

KRAFT EcoLine Container Standardmodelle

Die KRAFT EcoLine Standardmodelle bieten Ihnen eine wirtschaftliche und zugleich hochwertige Lösung für verschiedenste Einsatzzwecke. Die Container sind sofort einsatzbereit, robust konstruiert und verfügen über eine effiziente PU-Sandwichdämmung. Ob als Büro-, Lager-, Aufenthalts- oder Interimsraum – die EcoLine Serie deckt die wichtigsten Standardanforderungen zuverlässig ab.

Unsere EcoLine Container sind in mehreren Ausführungen kurzfristig verfügbar. Stellen Sie uns einfach eine Anfrage, um aktuelle Produktionszeiten, Ausstattungsoptionen und Lieferbedingungen zu erhalten.

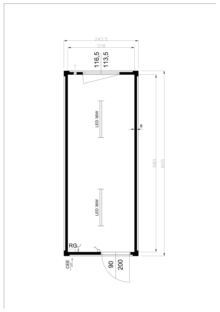
Lieferzeit: 2 Wochen
Inkl. Elektroinstallation

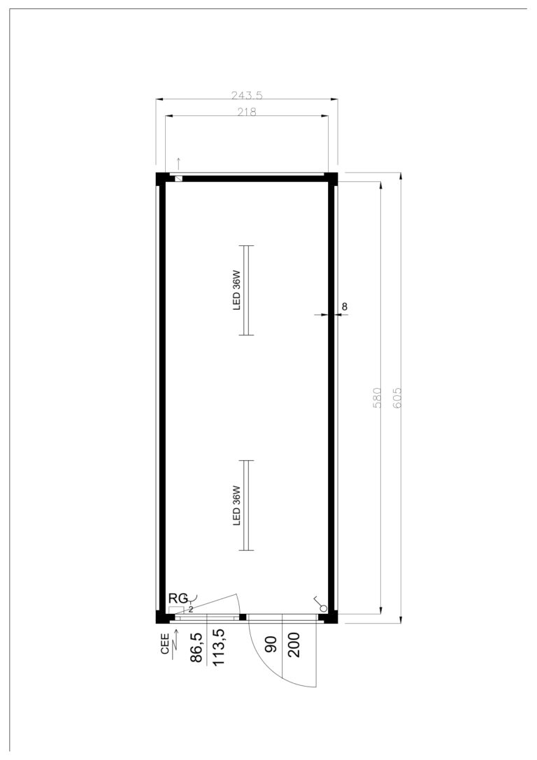
Lieferzeit: 2 Wochen
Inkl. Elektroinstallation, großes Einzelfenster

Lieferzeit: 2 Wochen
Inkl. Elektroinstallation, Doppelfenster

Einsatzgebiete des KRAFT EcoLine Containers

Der KRAFT EcoLine Container ist vielseitig einsetzbar und bietet eine robuste, gedämmte und sofort nutzbare Raumlösung für zahlreiche Anwendungen. Dank seiner stabilen Stahlrahmenkonstruktion, der hochwertigen PU-Sandwichdämmung und flexiblen Ausstattungsoptionen eignet er sich ideal für:

– Bürocontainer
Als kurzfristige oder dauerhafte Erweiterung Ihrer Büroflächen.

– Pförtner- und Empfangscontainer
Perfekt für Werkszufahrten, Sicherheitsbereiche oder Baustelleneinrichtungen.

– Umkleidecontainer
Ideal für Personalbereiche, mit optionaler Elektroinstallation, Heizung oder Klima.

– Baustellencontainer
Für Besprechungen, Lagerung, Personalräume oder technische Installationen.

– Interimslösungen als Büro oder Lager
Schnelle und flexible Lösung bei Umbauten, Modernisierungen oder Notfällen.

– Verkaufscontainer
Für Märkte, Pop-Up-Stände oder temporäre Verkaufsflächen.

– Unterstand bei schlechtem Wetter
Geschützte Rückzugsräume für Mitarbeitende oder Besucher.

– Lager für Elektrowerkzeuge und feuchtigkeitsempfindliche Materialien
Dank der gedämmten Bauweise mit kontrollierten Temperatur- und Feuchtigkeitswerten ideal für sensible Materialien, Maschinen oder Akku-Werkzeuge.

Galerie

Kontaktieren Sie uns gerne bei Fragen zu unseren KRAFT Eco Line Modellen und auch dann, wenn sich Ihr Containerprojekt noch in der Planungsphase befindet. Wenn Sie nach einer individuellen Lösung in Containerbauweise suchen, informieren wir Sie gerne über alle Möglichkeiten.

Telefon

E-MAIL

Container